Kristie Haz / eXp Realty (NA)

9828 Croft St, Commercial for sale Chemainus , BC , V0R 1K1

 MLS® # 1015649

0 bathrooms

Sign up to View

Days on Market

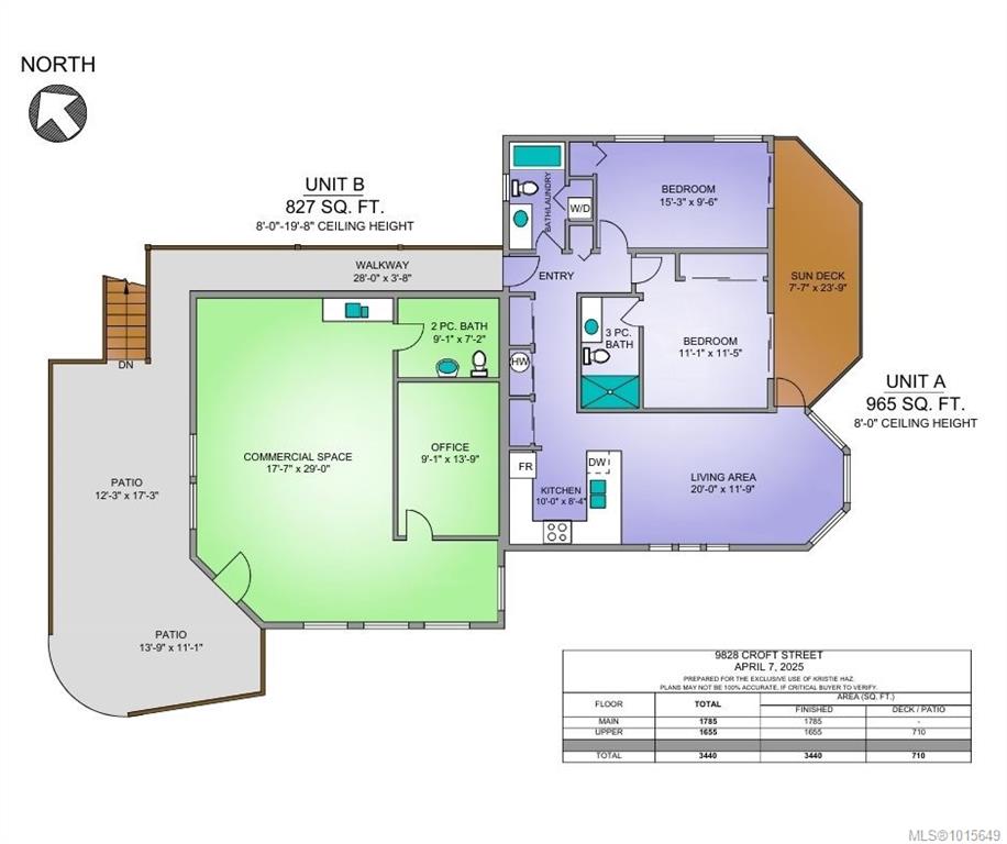
An exceptional opportunity to own a multi-use income property offering the best of both worlds-steady residential income and flexible commercial potential. The building is comprised of three commercial units, one storage unit, and a well-appointed two-bedroom residential suite currently leased to a long-term tenant at $1,400/month. With the balance of the property delivered vacant at completion, new ownership has the freedom to hand-select tenants, reposition for higher returns, or occupy part of the buildi...

Read More

Essential Information

  • MLS® #
    1015649
  • Year Built
    2002
  • Property Type
    Mixed Use
  • MLS® #
    1015649
  • Year Built
    2002
  • Property Type
    Mixed Use
  • MLS® #
    1015649
  • Year Built
    2002
  • Property Type
    Mixed Use

Community Information

  • Postal Code
    V0R 1K1
  • Postal Code
    V0R 1K1
  • Postal Code
    V0R 1K1

Interior

  • Storeys
    2
  • Storeys
    2
  • Storeys
    2

Exterior

  • Lot/Exterior Features
    Balcony/Deck
  • Lot/Exterior Features
    Balcony/Deck
  • Lot/Exterior Features
    Balcony/Deck

Additional Details

  • Zoning
    C - 2
  • Zoning
    C - 2
  • Zoning
    C - 2

$925,000

9828 Croft St

Schedule Tour
Contact Agent

$4213/month
Est. Monthly Payment
$
$
%
Learn More