David Boon / William Wright Commercial Real Estate Service - Victoria Branch

840 Humboldt St Victoria , BC , V8V 5B1

 MLS® # 1015926

0 bathrooms

Sign up to View

Days on Market

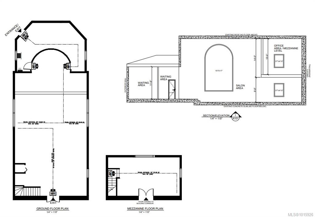
One-of-a-kind opportunity to lease the historic chapel + mezzanine at St Joseph's Hospital. ~26' high cathedral ceiling and oversized original stained glass windows on two sides. Tremendous and unique location on the edge of downtown. This architectural gem includes a wraparound vestibule entrance with private entrance, a 324 SF second level mezzanine with stained glass windows, and a private 2- or 3- piece washroom. The unit is ready for your finishing touches, with original hardwood floors newly restored....

Read More

Essential Information

  • MLS® #
    1015926
  • Property Type
    Mixed Use
  • MLS® #
    1015926
  • Property Type
    Mixed Use
  • MLS® #
    1015926
  • Property Type
    Mixed Use

Community Information

  • Postal Code
    V8V 5B1
  • Postal Code
    V8V 5B1
  • Postal Code
    V8V 5B1

Interior

  • Floor Finish
    Hardwood
  • Heating
    Electric
  • Floor Finish
    Hardwood
  • Heating
    Electric
  • Floor Finish
    Hardwood
  • Heating
    Electric

Exterior

  • Construction
    Stone
  • Construction
    Stone
  • Construction
    Stone

Additional Details

  • Zoning
    CD-4
  • Zoning
    CD-4
  • Zoning
    CD-4

$25/sqft

840 Humboldt St

Schedule Tour
Contact Agent

$1/month
Est. Monthly Payment
$
$
%
Learn More