Brenda Grant / Realpro Real Estate Services Inc.

70 Westhaven Way, House for sale Campbell River , BC , V9W 0A1

 MLS® # 1014578

5 bedrooms

3 bathrooms

2,332 sqft

Sign up to View

Days on Market

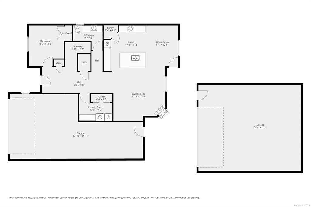
Pride of ownership shines in this stunning 5 bed, 3 bath home on a spacious .24-acre lot. The open-concept design features a chef’s kitchen with white cabinetry, quartz counters, stainless appliances, and ample storage. The bright living room offers a cozy gas fireplace, while the main floor includes a versatile 5th bed/den. Upstairs you will find four generous sized bedrooms, loads of room for everyone! Enjoy outdoors with a semi in-ground pool, hot tub, and boxed gardens. The oversized detached garage me...

Read More

Essential Information

  • MLS® #
    1014578
  • Total Bathrooms
    3
  • Year Built
    2017
  • Property Type
    Single Family Detached
  • MLS® #
    1014578
  • Total Bathrooms
    3
  • Year Built
    2017
  • Property Type
    Single Family Detached
  • MLS® #
    1014578
  • Total Bathrooms
    3
  • Year Built
    2017
  • Property Type
    Single Family Detached

Community Information

  • Postal Code
    V9W 0A1
  • Postal Code
    V9W 0A1
  • Postal Code
    V9W 0A1

Services & Amenities

  • Parking
    Attached
    Detached
    Driveway
    Garage Double
    RV Access/Parking
  • Parking
    Attached, Detached, Driveway, Garage Double, RV Access/Parking
  • Parking
    Attached
    Detached
    Driveway
    Garage Double
    RV Access/Parking

Interior

  • Floor Finish
    Mixed
  • Heating
    Heat Pump
  • Floor Finish
    Mixed
  • Heating
    Heat Pump
  • Floor Finish
    Mixed
  • Heating
    Heat Pump

Exterior

  • Lot/Exterior Features
    Balcony/Patio
    Fencing: Full
    Swimming Pool
  • Roof
    Fibreglass Shingle
  • Construction
    Cement Fibre
    Frame Wood
    Insulation All
  • Lot/Exterior Features
    Balcony/Patio, Fencing: Full, Swimming Pool
  • Roof
    Fibreglass Shingle
  • Construction
    Cement Fibre, Frame Wood, Insulation All
  • Lot/Exterior Features
    Balcony/Patio
    Fencing: Full
    Swimming Pool
  • Roof
    Fibreglass Shingle
  • Construction
    Cement Fibre
    Frame Wood
    Insulation All

Additional Details

  • Zoning
    R-1
  • Sewer
    Sewer Connected
  • Zoning
    R-1
  • Sewer
    Sewer Connected
  • Zoning
    R-1
  • Sewer
    Sewer Connected

$1,185,000

70 Westhaven Way

Schedule Tour
Contact Agent

$5397/month
Est. Monthly Payment
$
$
%
Learn More