Evan Richardson / William Wright Commercial Real Estate Services

2886 4th Ave Port Alberni , BC , V9Y 2A9

 MLS® # 1023279

0 bathrooms

Sign up to View

Days on Market

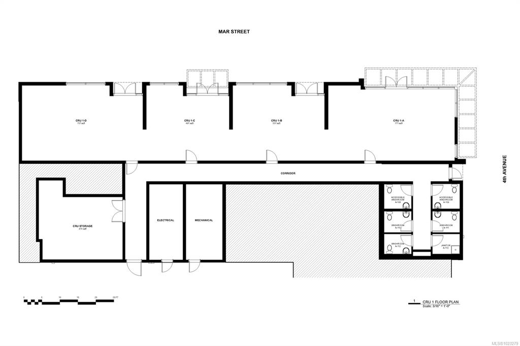
Located at the corner of 4th Avenue and Mar Street in Port Alberni, this new five-storey mixed-use development will offer 2940sq ft of flexible ground-floor commercial space with 40 affordable housing units above. The commercial component provides highly adaptable premises ranging from a minimum of 564 sq ft up to a maximum contiguous area of 2940sq ft across four units. Spaces can be demised into a variety of smaller configurations to suit tenant requirements or combined to accommodate larger users. Desig...

Read More

Essential Information

  • MLS® #
    1023279
  • Property Type
    Retail
  • MLS® #
    1023279
  • Property Type
    Retail
  • MLS® #
    1023279
  • Property Type
    Retail

Community Information

  • Postal Code
    V9Y 2A9
  • Postal Code
    V9Y 2A9
  • Postal Code
    V9Y 2A9

$1,785

2886 4th Ave

Schedule Tour
Contact Agent

$9/month
Est. Monthly Payment
$
$
%
Learn More