Ram Raman / Pemberton Holmes Ltd. - Oak Bay

2733 Peatt Rd, Townhouse for sale Langford , BC , V9B 3V2

 MLS® # 1025021

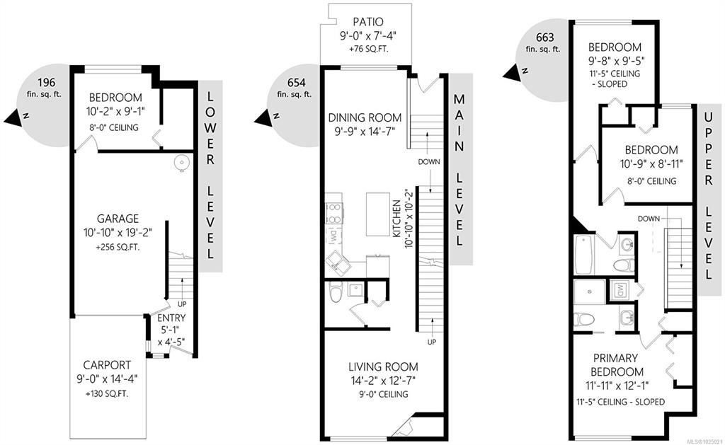
4 bedrooms

3 bathrooms

1,513 sqft

Sign up to View

Days on Market

Welcome to Avanti – where style meets comfort. This beautifully maintained 4-bedroom, 3-bath townhome features a modern designer kitchen with custom Wenge & Quartercut Oak Cabinetry, quartz countertops, and st/sl appliances. Fall in love with the bright and immaculate kitchen, perfectly complemented by a separate dining area and a cozy living room with a stylish fireplace. The upper level offers a spacious primary bedroom with vaulted ceilings and ensuite bathroom, along with two additional well-sized bedro...

Read More

Essential Information

  • MLS® #
    1025021
  • Total Bathrooms
    3
  • Year Built
    2012
  • Property Type
    Row/Townhouse
  • MLS® #
    1025021
  • Total Bathrooms
    3
  • Year Built
    2012
  • Property Type
    Row/Townhouse
  • MLS® #
    1025021
  • Total Bathrooms
    3
  • Year Built
    2012
  • Property Type
    Row/Townhouse

Community Information

  • Postal Code
    V9B 3V2
  • Postal Code
    V9B 3V2
  • Postal Code
    V9B 3V2

Services & Amenities

  • Parking
    Carport
    Garage
    Guest
  • Parking
    Carport, Garage, Guest
  • Parking
    Carport
    Garage
    Guest

Interior

  • Floor Finish
    Laminate
  • Heating
    Baseboard
    Electric
  • Storeys
    3
  • Floor Finish
    Laminate
  • Heating
    Baseboard, Electric
  • Storeys
    3
  • Floor Finish
    Laminate
  • Heating
    Baseboard
    Electric
  • Storeys
    3

Exterior

  • Roof
    Asphalt Torch On
  • Construction
    Cement Fibre
    Concrete
    Frame Wood
    Insulation All
  • Roof
    Asphalt Torch On
  • Construction
    Cement Fibre, Concrete, Frame Wood, Insulation All
  • Roof
    Asphalt Torch On
  • Construction
    Cement Fibre
    Concrete
    Frame Wood
    Insulation All

Additional Details

  • Sewer
    Sewer Connected
  • Sewer
    Sewer Connected
  • Sewer
    Sewer Connected

$760,000

2733 Peatt Rd

Schedule Tour
Contact Agent

$3461/month
Est. Monthly Payment
$
$
%
Learn More