Kyle Porter / NAI Commercial (Victoria) Inc.

2665 Sooke Rd, Commercial for sale Langford , BC , V9B 1Y5

 MLS® # 1013574

0 bathrooms

Sign up to View

Days on Market

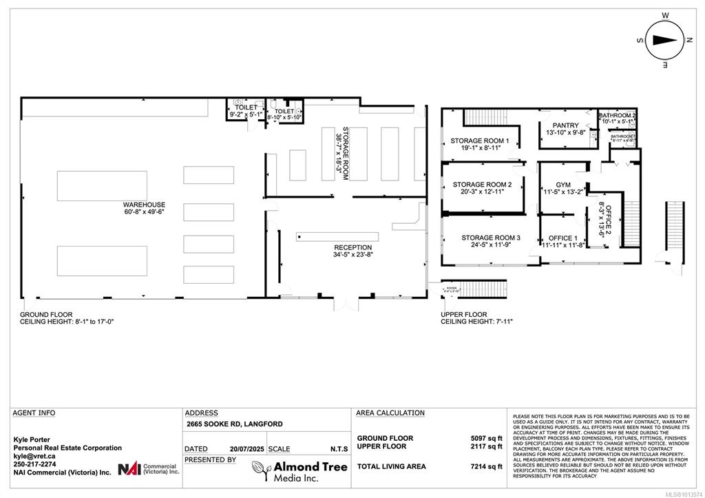
FOR SALE: NAi Commercial is pleased to present 2665 Sooke Rd. A 20,756 sq’ flat, high-visibility commercial property with 7,200 sq’ building. Perfect for an owner occupier, investor, or as a future redevelopment site. 5,100 sq’ on the ground floor with reception, offices, washrooms, storage, including over 3,000sq’ warehouse with 17’ ceilings and 4 loading bays. Upper level offers 2,100 sq’ of offices, kitchen/staff room, and storage. Versatile CS1 zoning permits a wide range of industrial, retail, service,...

Read More

Essential Information

  • MLS® #
    1013574
  • Year Built
    1981
  • Property Type
    Industrial
  • MLS® #
    1013574
  • Year Built
    1981
  • Property Type
    Industrial
  • MLS® #
    1013574
  • Year Built
    1981
  • Property Type
    Industrial

Community Information

  • Postal Code
    V9B 1Y5
  • Postal Code
    V9B 1Y5
  • Postal Code
    V9B 1Y5

Exterior

  • Construction
    Block
    Concrete
    Glass
    Metal Siding
  • Construction
    Block, Concrete, Glass, Metal Siding
  • Construction
    Block
    Concrete
    Glass
    Metal Siding

Additional Details

  • Zoning
    CS1
  • Sewer
    Sewer Connected
  • Zoning
    CS1
  • Sewer
    Sewer Connected
  • Zoning
    CS1
  • Sewer
    Sewer Connected

$3,600,000

2665 Sooke Rd

Schedule Tour
Contact Agent

$16394/month
Est. Monthly Payment
$
$
%
Learn More