Rosemarie Root / Day Team Realty Ltd

243 Twiggly Wiggly Rd, Mobile for sale Nanaimo , BC , V9R 6T4

 MLS® # 1028053

1 bedrooms

1 bathrooms

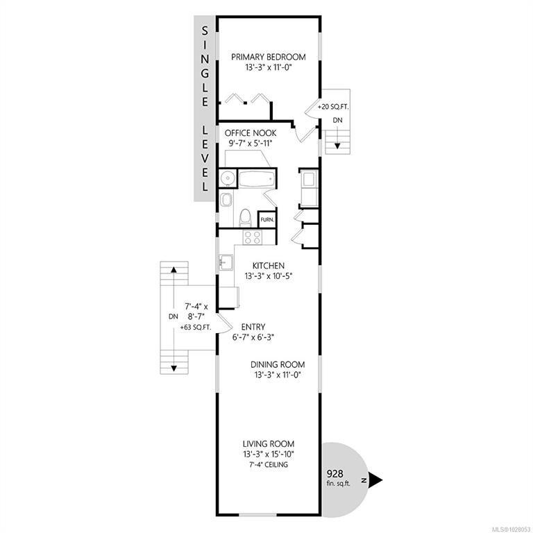
928 sqft

Sign up to View

Days on Market

Affordable opportunity to be the market with this nicely maintained 14-ft wide, 1-bedroom, 1-bath manufactured home situated on its own 9,970 sq. ft. lot near Westwood Lake in Nanaimo. Connected to municipal water and sewer, this home and property offer comfortable living for first-time buyers, downsizers, or anyone seeking space and privacy at an excellent price point. The sunny lot features mature landscaping, a partially fenced yard, and a great space for gardening and outdoor entertaining. There is ampl...

Read More

Essential Information

  • MLS® #
    1028053
  • Total Bathrooms
    1
  • Property Type
    Manufactured Home
  • MLS® #
    1028053
  • Total Bathrooms
    1
  • Property Type
    Manufactured Home
  • MLS® #
    1028053
  • Total Bathrooms
    1
  • Property Type
    Manufactured Home

Community Information

  • Postal Code
    V9R 6T4
  • Postal Code
    V9R 6T4
  • Postal Code
    V9R 6T4

Services & Amenities

  • Parking
    Open
  • Parking
    Open
  • Parking
    Open

Interior

  • Floor Finish
    Mixed
  • Heating
    Electric
    Forced Air
  • Floor Finish
    Mixed
  • Heating
    Electric, Forced Air
  • Floor Finish
    Mixed
  • Heating
    Electric
    Forced Air

Exterior

  • Lot/Exterior Features
    Fencing: Partial
  • Roof
    Membrane
  • Construction
    Aluminum Siding
    Insulation: Ceiling
    Insulation: Walls
  • Lot/Exterior Features
    Fencing: Partial
  • Roof
    Membrane
  • Construction
    Aluminum Siding, Insulation: Ceiling, Insulation: Walls
  • Lot/Exterior Features
    Fencing: Partial
  • Roof
    Membrane
  • Construction
    Aluminum Siding
    Insulation: Ceiling
    Insulation: Walls

Additional Details

  • Zoning
    R1A
  • Sewer
    Sewer To Lot
  • Zoning
    R1A
  • Sewer
    Sewer To Lot
  • Zoning
    R1A
  • Sewer
    Sewer To Lot

$519,900

243 Twiggly Wiggly Rd

Schedule Tour
Contact Agent

$2368/month
Est. Monthly Payment
$
$
%
Learn More