Vanessa Monteith-Hird / REMAX Ocean Pacific (CR)

1800 Perkins Rd, Mobile for sale in Braeside Mobile Estates Campbell River , BC , V9W 4S1

 MLS® # 1029775

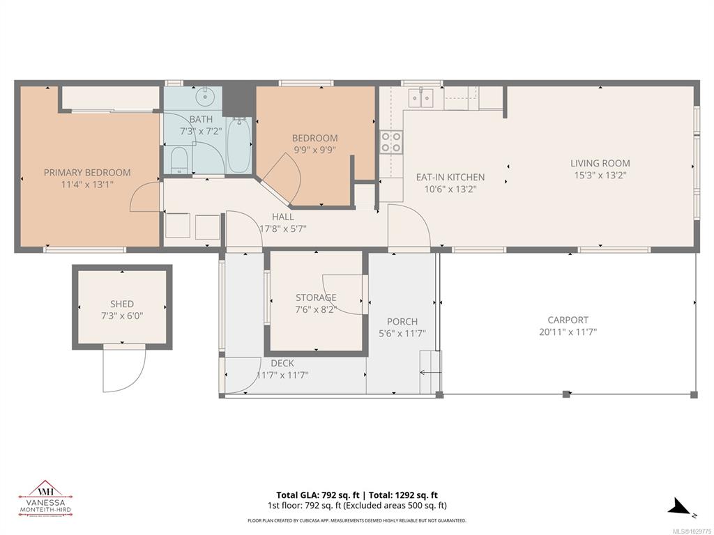
2 bedrooms

1 bathrooms

792 sqft

Sign up to View

Days on Market

Welcome to this impeccably maintained mobile home in a peaceful 55+ adult-oriented park. This two bedroom, one bathroom home has been lovingly maintained and features vinyl windows, laminate flooring, newer trim, flooring, electric wall heaters throughout, a new roof in 2021 and a car port. Step outside to enjoy a pleasant yard, perfect for gardening or soaking up the sunshine. A garden shed and porch shed provides additional dry storage, while the wrap around deck creates a comfortable sitting area to rela...

Read More

Essential Information

  • MLS® #
    1029775
  • Total Bathrooms
    1
  • Year Built
    1978
  • Property Type
    Manufactured Home
  • MLS® #
    1029775
  • Total Bathrooms
    1
  • Year Built
    1978
  • Property Type
    Manufactured Home
  • MLS® #
    1029775
  • Total Bathrooms
    1
  • Year Built
    1978
  • Property Type
    Manufactured Home

Community Information

  • Postal Code
    V9W 4S1
  • Postal Code
    V9W 4S1
  • Postal Code
    V9W 4S1

Services & Amenities

  • Parking
    Carport
    Driveway
  • Parking
    Carport, Driveway
  • Parking
    Carport
    Driveway

Interior

  • Floor Finish
    Laminate
    Linoleum
    Mixed
  • Heating
    Baseboard
    Electric
  • Floor Finish
    Laminate, Linoleum, Mixed
  • Heating
    Baseboard, Electric
  • Floor Finish
    Laminate
    Linoleum
    Mixed
  • Heating
    Baseboard
    Electric

Exterior

  • Lot/Exterior Features
    Balcony/Deck
    Fencing: Partial
  • Roof
    Asphalt Shingle
  • Construction
    Aluminum Siding
    Frame Metal
    Frame Wood
    Insulation: Ceiling
    Insulation: Walls
  • Lot/Exterior Features
    Balcony/Deck, Fencing: Partial
  • Roof
    Asphalt Shingle
  • Construction
    Aluminum Siding, Frame Metal, Frame Wood, Insulation: Ceiling, Insulation: Walls
  • Lot/Exterior Features
    Balcony/Deck
    Fencing: Partial
  • Roof
    Asphalt Shingle
  • Construction
    Aluminum Siding
    Frame Metal
    Frame Wood
    Insulation: Ceiling
    Insulation: Walls

Additional Details

  • Zoning
    MHP
  • Sewer
    Sewer Connected
  • Zoning
    MHP
  • Sewer
    Sewer Connected
  • Zoning
    MHP
  • Sewer
    Sewer Connected

$165,000

1800 Perkins Rd

Schedule Tour
Contact Agent

$752/month
Est. Monthly Payment
$
$
%
Learn More