Shane Hedefine / REMAX Ocean Pacific (CR)

1160 Shellbourne Blvd, Mobile for sale in PRADO VERDE Campbell River , BC , V9W 5G5

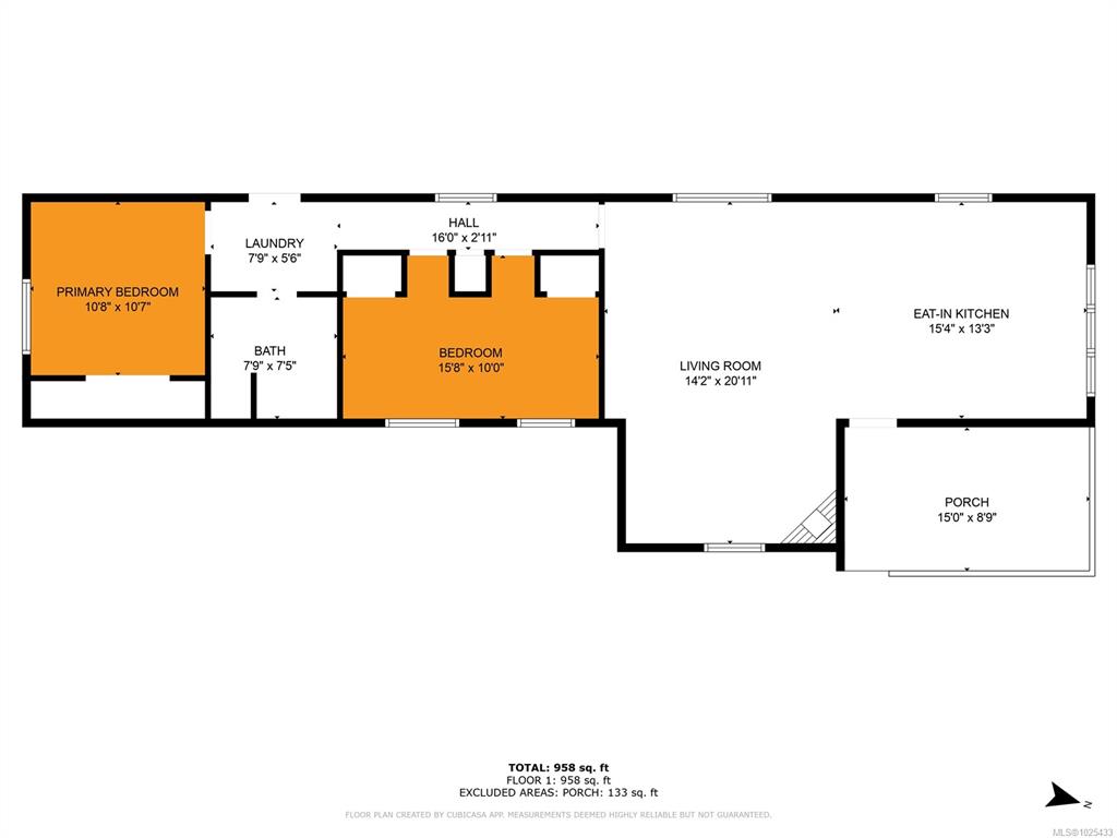
 MLS® # 1025433

2 bedrooms

1 bathrooms

1,044 sqft

Sign up to View

Days on Market

Nestled in the Shellbourne area, this spacious manufactured home offers comfort and convenience just minutes from Beaver Lodge walking trails and the college. The inviting open-plan layout seamlessly connects the living, dining, and kitchen areas, creating an ideal space for both relaxing and entertaining. Recent updates include new siding, skirting, gutters, and reinstalled vinyl windows. Ploy -B plumbing replaced in 2022. Situated in a well-maintained park, this property presents a great opportunity to ma...

Read More

Essential Information

  • MLS® #
    1025433
  • Total Bathrooms
    1
  • Year Built
    1983
  • Property Type
    Manufactured Home
  • MLS® #
    1025433
  • Total Bathrooms
    1
  • Year Built
    1983
  • Property Type
    Manufactured Home
  • MLS® #
    1025433
  • Total Bathrooms
    1
  • Year Built
    1983
  • Property Type
    Manufactured Home

Community Information

  • Postal Code
    V9W 5G5
  • Postal Code
    V9W 5G5
  • Postal Code
    V9W 5G5

Services & Amenities

  • Parking
    Driveway
  • Parking
    Driveway
  • Parking
    Driveway

Interior

  • Floor Finish
    Mixed
  • Heating
    Forced Air
    Oil
  • Floor Finish
    Mixed
  • Heating
    Forced Air, Oil
  • Floor Finish
    Mixed
  • Heating
    Forced Air
    Oil

Exterior

  • Roof
    Asphalt Shingle
  • Construction
    Aluminum Siding
    Insulation: Ceiling
    Insulation: Walls
  • Roof
    Asphalt Shingle
  • Construction
    Aluminum Siding, Insulation: Ceiling, Insulation: Walls
  • Roof
    Asphalt Shingle
  • Construction
    Aluminum Siding
    Insulation: Ceiling
    Insulation: Walls

Additional Details

  • Zoning
    MHP
  • Sewer
    Sewer Connected
  • Zoning
    MHP
  • Sewer
    Sewer Connected
  • Zoning
    MHP
  • Sewer
    Sewer Connected

$169,000

1160 Shellbourne Blvd

Schedule Tour
Contact Agent

$770/month
Est. Monthly Payment
$
$
%
Learn More