Tina Lynch / Royal LePage Nanaimo Realty Gabriola

1120 Chappel Pl, House for sale Gabriola Island , BC , V0R 1X2

 MLS® # 1026638

2 bedrooms

2 bathrooms

902 sqft

Sign up to View

Days on Market

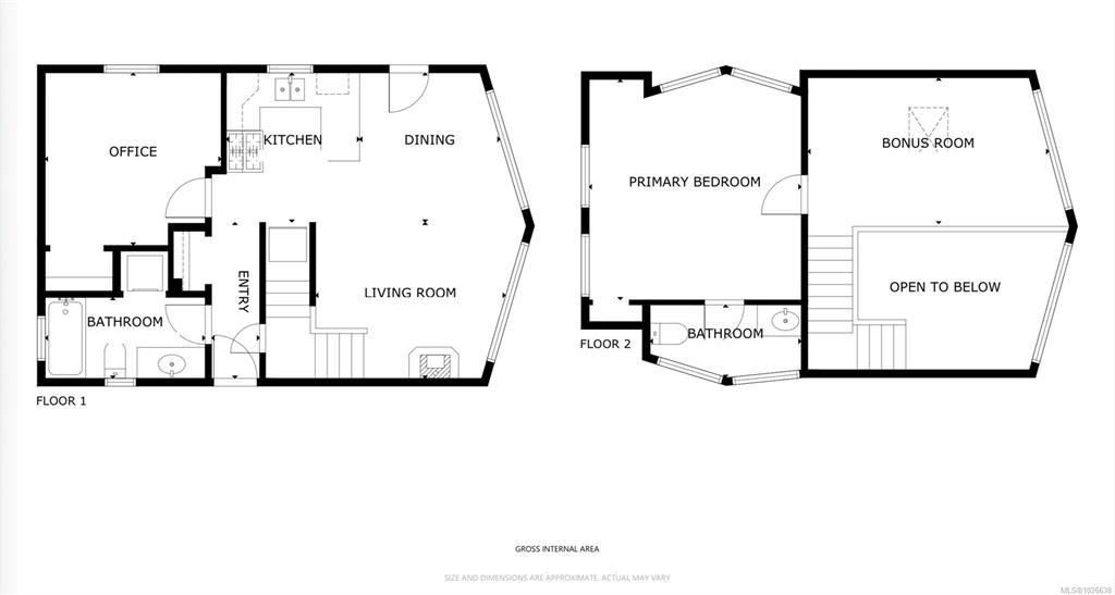
West Coast cedar-sided 2-bedroom, 2-bathroom home with metal roof, situated on 0.60 acres close to the ferry, village shopping, and a short walk to Descanso Bay. Spacious deck overlooks the yard, where 1,000+ deer-proof daffodils bloom in season. Inside the 902 sq ft home, vaulted ceilings and large windows create a bright, open feel. The main level features a kitchen with propane oven, living room with high wood ceilings, and dining room opening to the deck, plus a bedroom and full 4-piece bath with laundr...

Read More

Essential Information

  • MLS® #
    1026638
  • Total Bathrooms
    2
  • Year Built
    2003
  • Property Type
    Single Family Detached
  • Property Style
    West Coast
  • MLS® #
    1026638
  • Total Bathrooms
    2
  • Year Built
    2003
  • Property Type
    Single Family Detached
  • Property Style
    West Coast
  • MLS® #
    1026638
  • Total Bathrooms
    2
  • Year Built
    2003
  • Property Type
    Single Family Detached
  • Property Style
    West Coast

Community Information

  • Postal Code
    V0R 1X2
  • Postal Code
    V0R 1X2
  • Postal Code
    V0R 1X2

Services & Amenities

  • Parking
    Driveway
    RV Access/Parking
  • Parking
    Driveway, RV Access/Parking
  • Parking
    Driveway
    RV Access/Parking

Interior

  • Floor Finish
    Mixed
  • Heating
    Baseboard
    Electric
  • Interior Feature
    Dining/Living Combo
  • Floor Finish
    Mixed
  • Heating
    Baseboard, Electric
  • Interior Feature
    Dining/Living Combo
  • Floor Finish
    Mixed
  • Heating
    Baseboard
    Electric
  • Interior Feature
    Dining/Living Combo

Exterior

  • Lot/Exterior Features
    Balcony/Deck
    Low Maintenance Yard
  • Roof
    Metal
  • Construction
    Insulation All
    Wood
  • Lot/Exterior Features
    Balcony/Deck, Low Maintenance Yard
  • Roof
    Metal
  • Construction
    Insulation All, Wood
  • Lot/Exterior Features
    Balcony/Deck
    Low Maintenance Yard
  • Roof
    Metal
  • Construction
    Insulation All
    Wood

Additional Details

  • Zoning
    SRR
  • Sewer
    Septic System
  • Zoning
    SRR
  • Sewer
    Septic System
  • Zoning
    SRR
  • Sewer
    Septic System

$635,000

1120 Chappel Pl

Schedule Tour
Contact Agent

$2892/month
Est. Monthly Payment
$
$
%
Learn More