Kellie Simpatico / Royal LePage Parksville-Qualicum Beach Realty (PK)

1089 College Dr, House for sale Nanaimo , BC , V9R 5X3

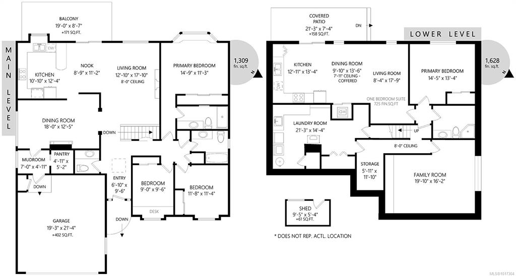
 MLS® # 1017304

4 bedrooms

4 bathrooms

2,937 sqft

Sign up to View

Days on Market

Welcome to this beautifully updated main-level entry home in desirable College Heights. Experience breathtaking, panoramic views of Departure Bay, the Salish Sea, downtown Nanaimo & coastal mountains. Ideal for couples or families, the main floor features a spacious primary bedroom & updated ensuite with walk-in shower. Two additional bedrooms & an updated family bath. Entertain with ease in the formal dining room featuring an electric, stone facing fireplace, cozy living room, breakfast nook, & great kitch...

Read More

Essential Information

  • MLS® #
    1017304
  • Total Bathrooms
    4
  • Year Built
    1986
  • Property Type
    Single Family Detached
  • MLS® #
    1017304
  • Total Bathrooms
    4
  • Year Built
    1986
  • Property Type
    Single Family Detached
  • MLS® #
    1017304
  • Total Bathrooms
    4
  • Year Built
    1986
  • Property Type
    Single Family Detached

Community Information

  • Postal Code
    V9R 5X3
  • Postal Code
    V9R 5X3
  • Postal Code
    V9R 5X3

Services & Amenities

  • Parking
    Additional
    Attached
    Driveway
    Garage Double
    Guest
  • Parking
    Additional, Attached, Driveway, Garage Double, Guest
  • Parking
    Additional
    Attached
    Driveway
    Garage Double
    Guest

Interior

  • Floor Finish
    Basement Slab
    Carpet
    Hardwood
    Mixed
    Tile
  • Heating
    Baseboard
    Heat Pump
  • Interior Feature
    Ceiling Fan(s)
    Closet Organizer
    Dining Room
    Eating Area
  • Floor Finish
    Basement Slab, Carpet, Hardwood, Mixed, Tile
  • Heating
    Baseboard, Heat Pump
  • Interior Feature
    Ceiling Fan(s), Closet Organizer, Dining Room, Eating Area
  • Floor Finish
    Basement Slab
    Carpet
    Hardwood
    Mixed
    Tile
  • Heating
    Baseboard
    Heat Pump
  • Interior Feature
    Ceiling Fan(s)
    Closet Organizer
    Dining Room
    Eating Area

Exterior

  • Lot/Exterior Features
    Balcony/Deck
    Garden
  • Roof
    Asphalt Shingle
  • Construction
    Brick & Siding
    Frame Wood
    Vinyl Siding
  • Lot/Exterior Features
    Balcony/Deck, Garden
  • Roof
    Asphalt Shingle
  • Construction
    Brick & Siding, Frame Wood, Vinyl Siding
  • Lot/Exterior Features
    Balcony/Deck
    Garden
  • Roof
    Asphalt Shingle
  • Construction
    Brick & Siding
    Frame Wood
    Vinyl Siding

Additional Details

  • Sewer
    Sewer Connected
  • Sewer
    Sewer Connected
  • Sewer
    Sewer Connected

$1,249,900

1089 College Dr

Schedule Tour
Contact Agent

$5692/month
Est. Monthly Payment
$
$
%
Learn More