Dane Kingsbury / Macdonald Realty Victoria

1064 Gala Crt, Townhouse for sale in Hawthorne Twnhomes Langford , BC , V9C 2Y2

 MLS® # 1029455

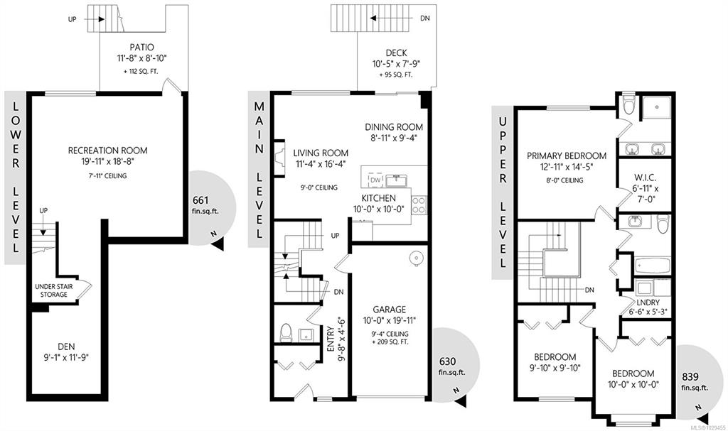
3 bedrooms

3 bathrooms

2,142 sqft

Sign up to View

Days on Market

Welome to Hawthorne Townhomes on Katie’s Pond. This beautifully designed 3-level home offers over 2,000 sq ft with 3 bed, 3 bath, + flex space, & a huge family room — ideal for flexible living. Tucked away on a quiet cul-de-sac with no thru traffic, it blends privacy with style. The main floor showcases a gourmet kitchen with quartz countertops, high-gloss cabinetry, upgraded stainless steel appliances & 9' ceilings, flowing seamlessly into open dining & living spaces with access to the rear south facing de...

Read More

Essential Information

  • MLS® #
    1029455
  • Total Bathrooms
    3
  • Year Built
    2016
  • Property Type
    Row/Townhouse
  • Property Style
    West Coast
  • MLS® #
    1029455
  • Total Bathrooms
    3
  • Year Built
    2016
  • Property Type
    Row/Townhouse
  • Property Style
    West Coast
  • MLS® #
    1029455
  • Total Bathrooms
    3
  • Year Built
    2016
  • Property Type
    Row/Townhouse
  • Property Style
    West Coast

Community Information

  • Postal Code
    V9C 2Y2
  • Postal Code
    V9C 2Y2
  • Postal Code
    V9C 2Y2

Services & Amenities

  • Parking
    Driveway
    Garage
  • Parking
    Driveway, Garage
  • Parking
    Driveway
    Garage

Interior

  • Floor Finish
    Carpet
    Laminate
    Linoleum
    Tile
  • Heating
    Baseboard
    Electric
    Natural Gas
  • Storeys
    3
  • Interior Feature
    Eating Area
    Storage
  • Floor Finish
    Carpet, Laminate, Linoleum, Tile
  • Heating
    Baseboard, Electric, Natural Gas
  • Storeys
    3
  • Interior Feature
    Eating Area, Storage
  • Floor Finish
    Carpet
    Laminate
    Linoleum
    Tile
  • Heating
    Baseboard
    Electric
    Natural Gas
  • Storeys
    3
  • Interior Feature
    Eating Area
    Storage

Exterior

  • Lot/Exterior Features
    Balcony/Patio
    Fencing: Partial
    Sprinkler System
  • Roof
    Asphalt Shingle
    Asphalt Torch On
  • Construction
    Cement Fibre
    Frame Wood
  • Lot/Exterior Features
    Balcony/Patio, Fencing: Partial, Sprinkler System
  • Roof
    Asphalt Shingle, Asphalt Torch On
  • Construction
    Cement Fibre, Frame Wood
  • Lot/Exterior Features
    Balcony/Patio
    Fencing: Partial
    Sprinkler System
  • Roof
    Asphalt Shingle
    Asphalt Torch On
  • Construction
    Cement Fibre
    Frame Wood

Additional Details

  • Sewer
    Sewer Connected
  • Sewer
    Sewer Connected
  • Sewer
    Sewer Connected

$849,900

1064 Gala Crt

Schedule Tour
Contact Agent

$3871/month
Est. Monthly Payment
$
$
%
Learn More